Eigentumswohnung in 1220 Wien
Wohnung kaufen Wien
Kurzbeschreibung: Wohnen im Grünen, nahe dem Badeteich Hirschstetten. In unmittelbarer Nähe zum malerischen Badeteich Hirschstetten, einem beliebten Naherholungsgebiet mit Spazierwegen und Badeplätzen, entsteht das durchdachte Wohnprojekt „Jonas am Feld“. weiterlesenEigentumswohnung Ausstattung:
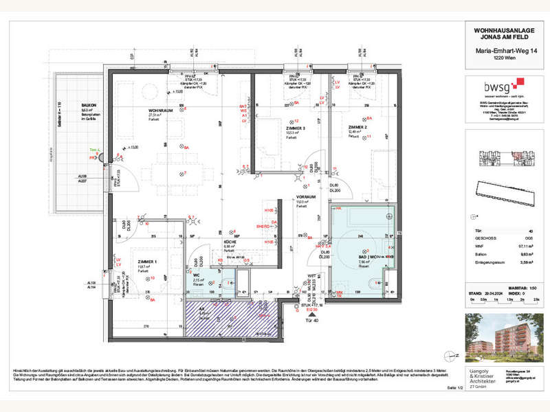
Lift, Fußbodenheizung, 4 Zimmer, 1 Balkone, Gartennutzung, Abstellraum, Fahrradraum, Fliesen, Parkett.Energieausweis: HWB: 27.00 - fGEE: 0.74 - HWB Klasse: B - fGEE Klasse: A
4-Zimmer Wohnung mit Ausblick im Projekt Jonas am Feld- Provisionsfrei
Wohnen im Grünen, nahe dem Badeteich Hirschstetten. In unmittelbarer Nähe zum malerischen Badeteich Hirschstetten, einem beliebten Naherholungsgebiet mit Spazierwegen und Badeplätzen, entsteht das durchdachte Wohnprojekt „Jonas am Feld“. Diese familienfreundliche Wohnanlage bietet 148 freifinanzierte Eigentumswohnungen, die sich auf drei Stiegen verteilen und für alle Lebensphasen geeignet sind. Vielseitige Wohnungsgrößen von kompakten 39 m² bis hin zu großzügigen 106 m² und flexible 1- bis 5-Zimmer-Grundrisse machen dieses Projekt besonders attraktiv. Jede Einheit verfügt über eine eigene Freifläche – ob Balkon, Terrasse oder Garten – und ein Kellerabteil. Zusätzlich können Tiefgaragenplätze mit Wallbox-Vorbereitung erworben werden. Das Projekt wurde bereits fertiggestellt, und Sie können nun Ihr neues Zuhause in dieser ideal gelegenen Wohnanlage beziehen.
Sichern Sie sich jetzt Ihre Traumwohnung – provisionsfrei und in idyllischer Grünruhelage!
Ausstattung:
Lift, Fußbodenheizung, 4 Zimmer, 1 Balkone, Gartennutzung, Abstellraum, Fahrradraum, Fliesen, Parkett.Wärmepumpe und innovative Wohnraumtemperierung
Deckenheizung & Raumtemperierung durch Bauteilaktivierung
Echtholzböden in den Wohnräumen
Keramische Fliesen in den Badezimmern
Elektrische Außenbeschattung für zusätzlichen Komfort
Glasfaseranschluss (A1 und Wien Energie) für modernes Wohnen
Gemeinschaftliche Fahrrad- und Kinderwagenräume
Jede Wohnung ist über einen Lift erreichbar
Lage:
Direkt beim Badeteich Hirschstetten, unweit der Blumengärten Hirschstetten.Öffentliche Anbindung:
- U-Bahn (U2): Haltestelle Hausfeldstraße ca. 1,4 km
- Die Haltestelle Hausfeldstraße ist in ca. 15 Minuten fußläufig erreichbar. Von hier ist die Wiener Innenstadt nur 20 Minuten entfernt.
- Straßenbahn (26): Haltestelle Prinzgasse ca. 350 m
- Bus:
- Linie 85A: Haltestelle Pirquetgasse ca. 150 m
- Linie 95A: Haltestelle Pirquetgasse ca. 150 m
- Linie 95B: Haltestelle Zanggasse ca. 300 m
- Linie 97A: Haltestelle Zanggasse ca. 350 m
Gastronomie:
- Cafés und Restaurants
- Bäckereien
Einkauf:
- Supermarkt am Gelände
- ADEG: 600 m
- Lidl: 850 m
- Hofer: 900 m
- Penny Markt: 1,5 km
Bildung:
- Kindergarten am Gelände
- Bildungscampus Berresgasse: 400 m
- Ganztagesvolksschule: 350 m
- Berufsschule: 400 m
Gesundheit:
- Fach- und Allgemeinärzt:innen im direkten Umfeld
- Apotheke: 550 m
- Physiotherapie: 750 m
- Donauspital: 3,9 km
Region: 22. Donaustadt. 5. Stockwerk.
Provisionsfrei – direkt vom Bauträger
Wohnqualität nahe dem Badeteich Hirschstetten
Perfekte Anbindung: Nähe zur U2-Station Hausfeldstraße sowie Buslinie 97A und Straßenbahn 26
Familienfreundliches Neubaugebiet mit moderner Infrastruktur
Hochwertige Ausstattung für Ihr neues Zuhause: Die Wohnungen überzeugen durch die Verwendung langlebiger und stilvoller Materialien
Bezugsbereit
Preisdetails
Kaufpreis: 542.896,-, Betriebskosten Netto: 161,91, monatliche Kosten: 189,20, Kosten Netto: 173,01, Kosten USt: 16,19, Kaufpreis pro m²: 5.326,17.CA521B6A-E45D-4F67-AFBA-FCDBCB6D5A9E

1AFF8E83-A7EA-4ADF-871A-5C044B682587

5CCB2025-2811-4985-9C28-DB3C2739AB34

6DAFF265-E0F6-4C72-AB7F-339C676090DA

4587B84D-13E7-48E4-BEF5-6349B88AAD23

Eigentumswohnung in Wien - Bild 7

Eigentumswohnung in Wien - Bild 8

Eigentumswohnung in Wien - Bild 9

Eigentumswohnung in Wien - Bild 10

Eigentumswohnung in Wien - Bild 11

Eigentumswohnung in Wien - Bild 12

Eigentumswohnung in Wien - Bild 13

Eigentumswohnung in Wien - Bild 14

Eigentumswohnung in Wien - Bild 15

Eigentumswohnung in Wien - Bild 16

1732982299734-ce128be5-f88d-4578-996d-dd6fa47f899d_1

1732982299734-ce128be5-f88d-4578-996d-dd6fa47f899d_2

Eigentumswohnung in Wien
Anbieter kontaktieren