Eigentumswohnung in 1220 Wien
Wohnung kaufen Wien
Kurzbeschreibung: Lebensfreude spüren, Freiheit genießen Entdecken Sie „The Liberty“ am Freihof: ein zukunftsweisendes Wohnprojekt, das die Harmonie des Landlebens mit der Dynamik der Stadt verbindet. Freuen Sie sich auf 36 Wohnungen und zwei exklusive weiterlesenEigentumswohnung Ausstattung:
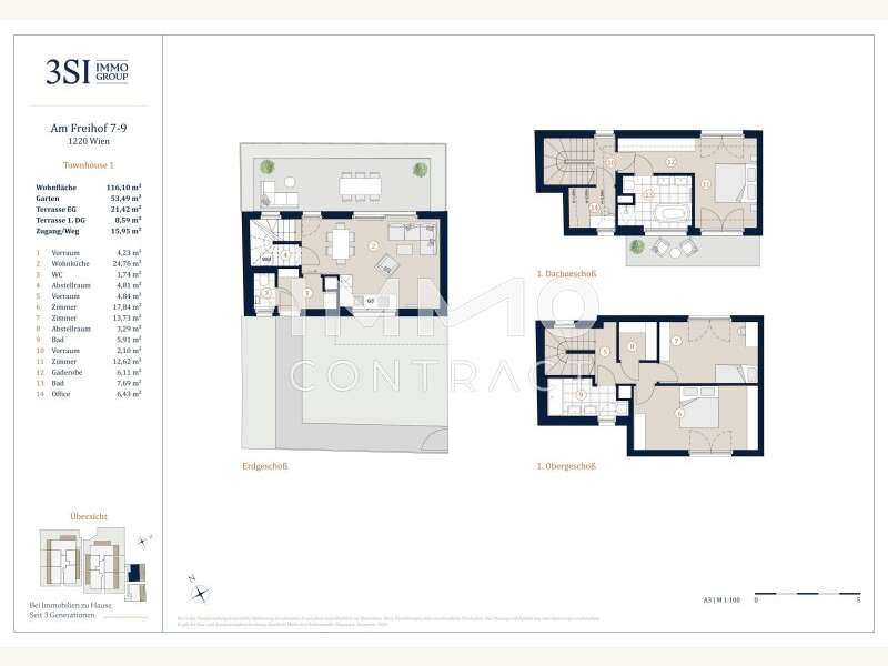
Lift, Tiefgarage, barrierefrei, Klimaanlage, Fußbodenheizung, 4 Zimmer, offene Küche, 2 Badezimmer, 1 separates WC, 1 Terrassen, Gartennutzung, Fahrradraum, Rolladen, Fliesen, Parkett, Fertigparkett, Dielen.Energieausweis: HWB: 33.8 - fGEE: 0.74 - HWB Klasse: B - fGEE Klasse: A
Wunderschönes Townhouse mit Eigengarten! Perfekt für Familien!
Lebensfreude spüren, Freiheit genießen
Entdecken Sie „The Liberty“ am Freihof: ein zukunftsweisendes Wohnprojekt, das die Harmonie des Landlebens mit der Dynamik der Stadt verbindet. Freuen Sie sich auf 36 Wohnungen und zwei exklusive Townhouses, alle mit ansprechenden Freiflächen, die zum Verweilen und Entspannen einladen. Die zukunftsorientierte Architektur ist nachhaltig und ÖGNI-zertifiziert, wobei clever konzipierte Grundrisse Komfort und Funktionalität perfekt vereinen. Nahe des pulsierenden Kagraner Platzes im 22. Bezirk bietet „The Liberty“ Ihnen die Möglichkeit, das aufregende Stadtleben Wiens zu erkunden und gleichzeitig die Ruhe der umliegenden Natur zu genießen.
Im urbanen Grün entfalten
Die Freiheit von „The Liberty“ beschränkt sich nicht nur auf Ihr neues Zuhause, sondern erstreckt sich auch auf die beeindruckenden Gemeinschafts- und Freibereiche. Großzügige, für alle zugängliche Grünflächen bieten einen angenehmen Rückzugsort, während eine einladende Pergola mit bequemen Sitzmöbeln im Sommer einen kühlen Schattenplatz in Ihrem persönlichen Naturparadies schafft. Für die kleinen Bewohner wartet ein abenteuerlicher Kinderspielplatz mit verschiedenen Spielgeräten, die jedes Kinderherz höherschlagen lassen. Ein besonderes Highlight sind die Urban-Gardening-Flächen im Außenbereich, die den Bewohnern die Möglichkeit bieten, eigenes Obst und Gemüse anzubauen. Mit Annehmlichkeiten wie einer hauseigenen Tiefgarage, E-Auto-Ladestationen und Fahrradabstellräumen mit Lademöglichkeiten für E-Bikes, eröffnet das moderne Wohnprojekt neue Dimensionen urbaner Unabhängigkeit.
Grenzenloses Wohlbefinden erleben
In der dynamischen und erfrischenden Architektur von „The Liberty“ spüren Sie das Gefühl von Freiheit, das sich besonders in den großzügigen Außenflächen und dem weitläufigen
Grundstück manifestiert. Zwei Baukörper und zwei Townhouses bieten ihren Bewohnern viel Raum zur individuellen Entfaltung und machen ihr neues Zuhause zu einer persönlichen
Wohlfühloase. Die vielfältigen 2- bis 4-Zimmerwohnungen sowie die zwei Townhouses sind intelligent konzipiert und dank der verschiedenen Grundrisse ideal für Singles, Paare und junge
Familien. Jede Wohnung verfügt über eine private Freifläche – sei es ein Balkon, eine Dachterrasse oder eine Terrasse – und erweitert so den Wohnraum nach draußen. Die ruhige Lage am Freihof macht jede Außenfläche zum perfekten Ort für Lebendigkeit und Ruhe.
Endloser Komfort im eigenen Zuhause
Ihrem Wohlbefinden und Komfort wird in Ihrem neuen Zuhause oberste Priorität eingeräumt. Große Fensterfronten lassen das Licht in die Wohnräume
fluten, zugleich geben Ihnen steuerbare Raffstores und Rollläden die Flexibilität, die Lichtverhältnisse nach Belieben anzupassen. Dank der Fußbodenkühlung und -heizung haben Sie die Möglichkeit, die Temperatur in jedem Raum individuell zu regulieren. Für zusätzlichen Komfort sind die Dachgeschoßwohnungen mit Fan-Coils für die Raumklimatisierung ausgestattet. Die warmen Eichenparkettböden verleihen den Wohnräumen eine gemütliche Atmosphäre, während die hochwertigen Markensanitärprodukte und die exquisite Ausstattung der Badezimmer zu einem erhöhten Wohlbefinden beitragen. Erleben Sie mit „The Liberty“ die Freude des Wohnens auf einem neuen Level!
Hochwertige Eichendielen
Komfortable Fußbodenheizung
3-fach verglaste Kunststoff-Aluminium-Fenster
Raffstores bzw. Rollläden
Vollklimatisierung im DG (Fan-Coils)
Markensanitärprodukte
Exklusives Feinsteinzeug
Videogegensprechanlage
Nachhaltigkeit als Lebensstil
„The Liberty“ ist nachhaltig geplant und stolzer Träger des ÖGNI-Zertifikats in Gold, welches das höchste Maß an ökologischer Bauweise unterstreicht. Ganz ohne fossile Brennstoffe können Sie bequem und umweltbewusst leben – mit geringen Betriebskosten. Im Sommer sorgt eine Kühlung über den Fußboden für angenehme Temperaturen, während eine umweltfreundliche Luftwärmepumpe das Gebäude beheizt. Die hauseigene Tiefgarage mit Möglichkeit einer Ladestation für E-Autos gewährleistet zukunftsweisende Mobilität. Ihr Fahrrad oder E-Bike findet im praktischen Fahrradabstellraum Platz, inklusive Lademöglichkeit. Großzügige Urban-Gardening-Flächen bringen das Grün direkt zu Ihnen nach Hause!!
ÖGNI „Gold“ zertifiziert
Umweltfreundliche Luftwärmepumpe
Innovative Fußbodenkühlung
Geringe Betriebskosten
Lademöglichkeit für E-Autos & E-Bikes
Großzügige Urban-Gardening-Flächen
Aus Liebe zur Freiheit
Die Bewohner von „The Liberty“ genießen eine außergewöhnliche Lage, die das Beste aus Shopping, Gastronomie, Erholung und Kultur vereint. Das nahe gelegene Donau Zentrum bietet ein beeindruckendes Einkaufs- und Gastronomieerlebnis, während die grünen Oasen auf der Donauinsel und rund um die Alte Donau unzählige Möglichkeiten für Outdoor-Aktivitäten und Entspannung inmitten der Natur versprechen. In unmittelbarer Nähe finden Sie außerdem ein ausgezeichnetes Angebot an Kindergärten und Schulen. Die hervorragende Verkehrsanbindung durch die U1-Station Kagraner Platz ermöglicht es, das Herz Wiens in nur wenigen Minuten zu erreichen. Ob Sie nun die pulsierende Energie der Stadt oder die friedliche Ruhe der Natur
bevorzugen - in „The Liberty“ können Sie beides in vollen Zügen genießen.
Wo der Himmel das Wasser trifft und die Stadt das Grüne
Tauchen Sie ein in die belebte Vielfalt der Donaustadt: Lassen Sie sich von der lebendigen Donauufer-Szene verzaubern, wo trendige Restaurants und Cafés wie Landtmann – Das Bootshaus oder das Strandcafé an der Alten Donau zum Genießen und Erholen einladen. Erleben Sie die grüne Umgebung Wiens hautnah auf der nur wenige Minuten entfernten
Donauinsel – einer atemberaubenden 21 km langen grünen Oase. Hier erstreckt sich eine Landschaft von endlosen Radwegen, versteckten Badestellen und idyllischen Ecken für entspannte
Momente in der Natur. Wenn Sie Wassersport lieben, bietet die Alte Donau vielfältige Möglichkeiten wie Rudern, Segeln oder Schwimmen. Ein besonderer Anziehungspunkt ist das Strandbad Gänsehäufel mit seinem eigenen Freibad und einer großzügigen Liegewiese. Die Umgebung von „The Liberty“ macht Ihr Stadtleben zu einem unvergesslichen Urlaubserlebnis.
Nebenkosten
Der guten Ordnung halber halten wir fest, dass, sofern im Angebot nicht anders vermerkt, bei erfolgreichem Abschlussfall eine Provision anfällt, die den in der Immobilienmaklerverordnung BGBI. 262 und 297/1996 festgelegten Sätzen entspricht – das sind 3 % des Kaufpreises zzgl. 20 % USt. Diese Provisionspflicht besteht auch dann, wenn Sie die Ihnen überlassenen Informationen an Dritte weitergeben. Letztlich weisen wir darauf hin, dass wir als Doppelmakler tätig sind und aufgrund einer ständigen Geschäftsbeziehung ein wirtschaftliches Naheverhältnis zum Bauträger besteht.
Die Vertragserrichtung und Treuhandabwicklung ist gebunden an die Kanzlei Mag. Schreiber A-1010 Wien, Schottenring 16. Die Kosten betragen 1,5 % des Kaufpreises zzgl. 20 % USt. sowie Barauslagen und Beglaubigung. Bei Fremdfinanzierung erhöht sich das Honorar auf 1,8 % vom Kaufpreis zzgl. 20 % USt., Barauslagen und Beglaubigung.
Wir weisen darauf hin, dass zwischen dem Vermittler und dem zu vermittelnden Dritten ein familiäres oder wirtschaftliches Naheverhältnis besteht.
Der Vermittler ist als Doppelmakler tätig.
Infrastruktur / EntfernungenGesundheit
Arzt <500m
Apotheke <500m
Klinik <2.000m
Krankenhaus <3.500m
Kinder & Schulen
Schule <500m
Kindergarten <1.000m
Universität <2.000m
Höhere Schule <1.000m
Nahversorgung
Supermarkt <500m
Bäckerei <500m
Einkaufszentrum <1.000m
Sonstige
Geldautomat <500m
Bank <500m
Post <1.000m
Polizei <1.500m
Verkehr
Bus <500m
U-Bahn <1.000m
Straßenbahn <500m
Bahnhof <1.000m
Autobahnanschluss <1.500m
Angaben Entfernung Luftlinie / Quelle: OpenStreetMap
Ausstattung:
Lift, Tiefgarage, barrierefrei, Klimaanlage, Fußbodenheizung, 4 Zimmer, offene Küche, 2 Badezimmer, 1 separates WC, 1 Terrassen, Gartennutzung, Fahrradraum, Rolladen, Fliesen, Parkett, Fertigparkett, Dielen.Lage:
Unweit zur U1 Kagranerplatz mit unzähligen Einkaufsmöglichkeiten, Restaurants, Schulen und Kindergärten.Das Gebäude selbst befindet sich in einer Grünruhelage und bietet somit Erholung und Lebensqualität auf höchsten Niveau.
Das Naherholungsgebiet der Alten Donau bzw. die Donauinsel laden Sie zum Entspannen ein, bietet Ihnen aber auch eine große Auswahl an kulinarischen Schmankerln (Das Bootshaus, Strandcafé an der Alten Donau, etc.) und vielfältige sportliche Aktivitäten wie Rudern, Segeln oder Schwimmen.
Region: Kagraner Platz. 4 Etage.
ÖGNI „Gold“ zertifiziert
Umweltfreundliche Luftwärmepumpe
Innovative Fußbodenkühlung
Geringe Betriebskosten
Lademöglichkeit für E-Autos & E-Bikes
Großzügige Urban-Gardening-Flächen
Grün und ruhig
Preisdetails
Kaufpreis: 799.000,-, Kaufpreis brutto: 799.000,-, Kaufpreis pro m²: 6.303,25. Provision: 3% des Kaufpreises zzgl. 20% USt.Außen

Badezimmer

Wohnzimmer 2

Wohnzimmer

230606_AmFreihof_7-9_BT1_DG2_Top17_Schlafzimmer

230606_AmFreihof_7-9_Dachterrasse

230606_AmFreihof7-9_BT2_DG1_Top13_Wohnküche

Eigentumswohnung in Wien - Bild 9

3SI_AmFreihof7-9_Haus3_Top_01-1

Eigentumswohnung in Wien
Anbieter kontaktieren