Eigentumswohnung in 1210 Wien

Wohnung kaufen Wien
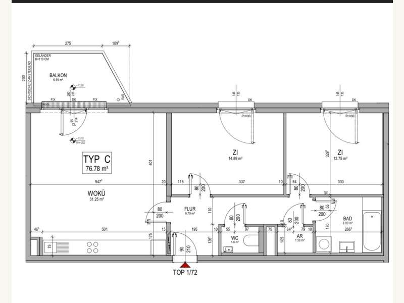
Kurzbeschreibung: Diese moderne und lichtdurchflutete 3-Zimmer Wohnung befindet sich im 4. Liftstock eines Neubaus aus dem Jahr 2020 in zentraler Lage des 21. Wiener Gemeindebezirks. Mit einer Wohnfläche von ca. 76,78 m² und einem ca. 6,59 m² großen Balkon bietet weiterlesenEigentumswohnung Ausstattung:
Lift, Garage, 1 Stellplatz, unterkellert, barrierefrei, Zentralheizung, 3 Zimmer, 1 Badezimmer, 1 separates WC, Swimmingpool, Sauna, 1 Balkone, Wasch/Trockenraum, Kabel/Sat-TV, Sporteinrichtungen.Energieausweis: HWB: 21.0 - fGEE: 0.810 - HWB Klasse: A - fGEE Klasse: A
✨Top-Neubau mit Urlaubsfeeling: 3-Zimmer Wohnung + Pool + Fitness + Sauna im Haus
Diese moderne und lichtdurchflutete 3-Zimmer Wohnung befindet sich im 4. Liftstock eines Neubaus aus dem Jahr 2020 in zentraler Lage des 21. Wiener Gemeindebezirks. Mit einer Wohnfläche von ca. 76,78 m² und einem ca. 6,59 m² großen Balkon bietet sie idealen Wohnkomfort für Paare, Familien oder anspruchsvolle Singles.
Die Wohnung überzeugt durch ihren modernen Grundriss, große Fensterflächen sowie durch Parkett und Fliesenböden von hoher Qualität.. Der Balkon lädt zum Verweilen im Freien ein – ideal für Frühstück oder entspannte Abende.
Raumaufteilung:
- Großzügiger Wohn-/Essbereich mit direktem Zugang zum Balkon
- Zwei separat begehbare Schlafzimmer
- Moderne Einbauküche
- Praktischer Abstellraum
- Badezimmer mit Badewanne
- Separates WC
- Balkon mit Blick auf die Promenade
Besondere Ausstattung im Haus:
- Wellnessbereich mit Sauna & Pool
- Fitnessraum zur freien Nutzung
- Gemeinschaftsraum – ideal für Feiern, Veranstaltungen etc.
- Kinderwagen- und Fahrradabstellraum
- Tiefgarage
- Billa-Supermarkt direkt im Erdgeschoss des Hauses – Einkäufe in wenigen Schritten erledigt
Ein besonderes Highlight:
Am Dach des Gebäudes befinden sich gemeinschaftlich nutzbare Hochbeete, in denen die Bewohner eigenes Obst, Gemüse oder Kräuter anbauen können. Eine perfekte Möglichkeit für alle, die Wert auf Nachhaltigkeit, frische Lebensmittel und ein Stück Natur in der Stadt legen.
Zur Information:
Ein Kfz-Stellplatz im Wert von € 30.000,- kann bei Interesse zusätzlich erworben werden. Für die hochwertige Einbauküche wird eine Ablöse in Höhe von € 10.000,- verlangt.
Öffentliche Verkehrsmittel in unmittelbarer Nähe:
- S-Bahn Jedlersdorf (S3, S4) – direkte Verbindung in die Innenstadt und Umgebung
- Buslinien 36A und 36B – nur wenige Schritte entfernt
- Straßenbahnlinien 26, 30 und 31 – fußläufig bequem erreichbar
Die ausgezeichnete Anbindung sorgt für eine schnelle Erreichbarkeit des Stadtzentrums sowie anderer Bezirke – sowohl mit den Öffis als auch mit dem Auto (A22 Donauuferautobahn).
Infrastruktur im Nahbereich:
- Zahlreiche Schulen und Kindergärten
-Krankenhaus und Fachärzte in der Nähe
- Supermärkte, Apotheken, Bäcker, Cafés
Erholungsgebiete wie Donauinsel, Marchfeldkanal oder der Floridsdorfer Wasserpark sind schnell erreichbar
Diese Wohnung vereint urbanes Wohnen mit hohem Wohnkomfort und umfangreicher Ausstattung im Haus. Die Kombination aus moderner Architektur, durchdachtem Grundriss und hervorragender Lage macht diese Immobilie zu einer attraktiven Gelegenheit.
https://youtube.com/watch?v=tBddji3ZDqY&si=vG473wCYdf9DvYBC
Vereinbaren Sie einen Besichtigungstermin, um sich selbst von den Vorzügen dieser Immobilie zu überzeugen!
Gerne senden wir Ihnen weitere Informationen per E-Mail zu. Für weitere Auskünfte steht Ihnen gerne jederzeit Herr Dipl.-Ing. Konstantin Makarius unter der Telefonnummer +4369912660058 oder per E-Mail unter makarius@4m-immo.at zur Verfügung.
Alle Angaben basieren auf Informationen des Verkäufers. Für die Richtigkeit wird keine Gewähr übernommen.
BITTE BEACHTEN SIE, DASS WIR AUF GRUND DER NACHWEISPFLICHT GEGENÜBER DEM EIGENTÜMER NUR ANFRAGEN MIT VOLLSTÄNDIGER BEKANNTGABE VON NAME, ANSCHRIFT, TELEFON UND E-MAIL BEARBEITEN KÖNNEN.
VERKAUFEN AUCH SIE DERZEIT IHRE IMMOBILIE?
Profitieren Sie von unserem umfassenden Service und unserer jahrzehntelangen Erfahrung!
Durch unsere Partnerschaften mit einem Partneranwalt, Notar und einer Bank stellen wir Ihnen eine schnellstmögliche Abwicklung zur Verfügung und können Ihnen dadurch eine effiziente Abwicklung garantieren. Wir bieten Ihnen die BESTE rundum Betreuung.Angaben gemäß gesetzlichem Erfordernis:
Heizwärmebedarf:21.0 kWh/(m²a)Klasse Heizwärmebedarf:AFaktor Gesamtenergieeffizienz:0.81Klasse Faktor Gesamtenergieeffizienz:A
Ausstattung:
Lift, Garage, 1 Stellplatz, unterkellert, barrierefrei, Zentralheizung, 3 Zimmer, 1 Badezimmer, 1 separates WC, Swimmingpool, Sauna, 1 Balkone, Wasch/Trockenraum, Kabel/Sat-TV, Sporteinrichtungen.Lage:
Stadtrand, 4. Stockwerk.
Preisdetails
Fixpreis.Kaufpreis: 399.000,-, Betriebskosten Netto: 348,77, Heizkosten Netto: 65,36, Heizkosten USt: 13,07, monatliche Kosten: 382,60, Kosten Netto: 348,77, Kosten USt: 33,83. Provision: 3.00 %.
Wohnzimmer

Wohnzimmer 2

Schlafzimmer

Schlafzimmer 2

Badezimmer

Eigentumswohnung in Wien - Bild 7

Abstellraum

Vorraum

Balkon

Fitnessraum

Sauna

Fahrradraum

Gebäudeeingang

Gebäude

Wohnungsplan

Eigentumswohnung in Wien
Anbieter kontaktieren