Eigentumswohnung in 1180 Wien
Wohnung kaufen Wien
Kurzbeschreibung: Herzlich willkommen bei Cottage Suites, dem exklusiven Neubauprojekt in Wien, das Ihnen ein stilvolles und kompromissloses Leben im Herzen des noblen Cottageviertels bietet. Bei Cottage Suites finden Sie die perfekte Balance zwischen zeitgemäßem weiterlesenEigentumswohnung Ausstattung:
Lift, Klimaanlage, Fußbodenheizung, 3 Zimmer, 1 Badezimmer, 1 separates WC, 1 Terrassen, Abstellraum, Fahrradraum, Parkett.Cottageviertel: Das Herzstück - 75m2 Garten von der Sonne geküsst
Herzlich willkommen bei Cottage Suites, dem exklusiven Neubauprojekt in Wien, das Ihnen ein stilvolles und kompromissloses Leben im Herzen des noblen Cottageviertels bietet. Bei Cottage Suites finden Sie die perfekte Balance zwischen zeitgemäßem Luxus und traditionellem Charme. Die hochwertige Ausstattung, geräumigen Balkone, Terrassen und privaten Gärten schaffen eine stilvolle Atmosphäre, in der Sie sich entspannen und Ihr Leben in vollen Zügen genießen können.
Die repräsentativen Wohnhäuser wurden von einem renommierten Architekturbüro entworfen und verfügen über eine feine Ziegelsteinfassade.
Die noch 6 verfügbaren, aus gesamt 34 attraktiven Wohneinheiten in den 2 fünfgeschossigen Häusern, bieten eine moderne und stilvolle Atmosphäre, die durch die umgebende grüne Parklandschaft noch verstärkt wird.
Cottage Suites bietet außerdem eine unter den beiden Gebäuden gelegene Tiefgarage sowie einen großen Fahrrad- und Kinderwagenabstellraum mit barrierefreiem Zugang.
Das Herzstück von Cottage Suites ist die großzügige Parkanlage, die unter majestätischen, alten Bäumen angelegt wurde. Hier gibt es viele wunderschöne Plätze zum Verweilen und Entspannen. Wenn Sie das Bedürfnis haben, einfach mal abzuschalten und dem Alltag zu entfliehen, finden Sie hier Ruhe und Erholung.
Ein weiteres Highlight von Cottage Suites ist der mobile 24/7 Concierge Service, der Ihnen jederzeit zur Verfügung steht. Ob frische Blumen, Einkäufe oder Reinigung – alles wird bequem für Sie erledigt, damit Sie sich entspannen und das Leben genießen können.
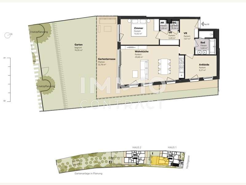
Diese charmante 3-Zimmer-Wohnung bietet Ihnen auf 70,94 m² ein komfortables und modernes Zuhause! Der großzügige Garten mit ca. 74,95 m² und die Gartenterrasse mit ca. 32,76 m² laden zum Verweilen im Freien ein und bieten einen wunderbaren Rückzugsort!
Wir weisen auf unsere Tätigkeit als Doppelmakler gem. § 5 MaklerG hin.
Wir weisen darauf hin, dass zwischen dem Vermittler und dem zu vermittelnden Dritten ein familiäres oder wirtschaftliches Naheverhältnis besteht.
Der Vermittler ist als Doppelmakler tätig.
Infrastruktur / EntfernungenGesundheit
Arzt <500m
Apotheke <500m
Klinik <1.000m
Krankenhaus <2.000m
Kinder & Schulen
Schule <500m
Kindergarten <500m
Universität <500m
Höhere Schule <500m
Nahversorgung
Supermarkt <500m
Bäckerei <500m
Einkaufszentrum <2.000m
Sonstige
Geldautomat <500m
Bank <500m
Post <500m
Polizei <1.000m
Verkehr
Bus <500m
U-Bahn <2.000m
Straßenbahn <500m
Bahnhof <500m
Autobahnanschluss <3.000m
Angaben Entfernung Luftlinie / Quelle: OpenStreetMap
Ausstattung:
Lift, Klimaanlage, Fußbodenheizung, 3 Zimmer, 1 Badezimmer, 1 separates WC, 1 Terrassen, Abstellraum, Fahrradraum, Parkett.Lage:
Exklusiv wohnt es sich hier, mitten im Cottage-Viertel, in einer der begehrtesten Wohngegenden Wiens im 18. Bezirk, eingebettet von Türkenschanzpark und Pötzleinsdorfer Schlosspark, mit ausgezeichneter Infrastruktur und wunderschöner Cottageviertel Atmosphäre. Villen im englischen, französischen und italienischen Stil prägen das Straßenbild.Ärzte, eine Apotheke, Bäckereien sowie Einkaufsmöglichkeiten und Restaurants finden sich hier direkt vor der Haustür. Bilinguale Schulen und Kindergärten sind ein paar Gehminuten entfernt. In nur 18 Minuten ist das Zentrum Wiens zu erreichen.
Cottage Suites verrät es schon mit seinem Namen! Traumhaftes Grün trifft auf städtische Infrastruktur.
5 Etage.
6 von 34 Wohnungen noch verfügbar
2 Häuser mit Ziegelsteinfassade
Größen zwischen ca. 39m² - 71m²
Großzügige Freiflächen bei jeder Wohnung
Ruhige Lage im Cottageviertel
Hauseigene Parkanlage
24/7 Concierge Service (digital)
Hauseigene Tiefgarage
Fahrrad- und Kinderwagenabstellraum
Preisdetails
Kaufpreis: 790.000,-, Kaufpreis brutto: 790.000,-, Betriebskosten Netto: 211,38, monatliche Kosten: 294,84, Kosten Netto: 268,03, Kosten USt: 26,81, Sonstige Kosten Netto: 56,65, Sonstige Kosten USt: 5,67, Kaufpreis pro m²: 9.047,18. Provision: 3% des Kaufpreises zzgl. 20% USt.Eigentumswohnung in Wien - Bild 2

Eigentumswohnung in Wien - Bild 3

Eigentumswohnung in Wien - Bild 4

Eigentumswohnung in Wien - Bild 5

Eigentumswohnung in Wien - Bild 6

598e9db9-807c-4350-810d-82e479691283

Eigentumswohnung in Wien - Bild 8

Eigentumswohnung in Wien - Bild 9

Eigentumswohnung in Wien - Bild 10

20240719_131228

Grundriss TOP 2 Haus 1

Eigentumswohnung in Wien
Anbieter kontaktieren