Büro in 1050 Wien

Gewerbeimmobilie mieten Wien
Kurzbeschreibung: Zur Vermietung gelangt eine Gewerbefläche gelegen im Erdgeschoss (nicht barrierefrei), welche als Geschäftslokal, Artelier oder Büro genutzt werden kann. Das Objekt verfügt über große Schaufensterportale und einen Eingang über die weiterlesenBüro Ausstattung:
Etagenheizung, 2 Zimmer, 2 separate WCs, Dusche, Fliesen.Energieausweis: HWB: 127 - fGEE: 1.65 - HWB Klasse: D - fGEE Klasse: C
vielseitig nutzbares Geschäftslokal / Büro - Spengergasse
Zur Vermietung gelangt eine Gewerbefläche gelegen im Erdgeschoss (nicht barrierefrei), welche als Geschäftslokal, Artelier oder Büro genutzt werden kann.
Das Objekt verfügt über große Schaufensterportale und einen Eingang über die Stolberggasse.
VIDEORUNDGANG
Link Videorundgang: https://storage.justimmo.at/video/1080p/wHvJUq5f29U2VzHEggpXQ.mp4
Eckdaten
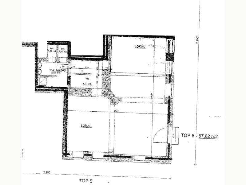
Nutzfläche: ca. 87,82m²
WC: 2
Dusche: 1
Küche: Anschlüsse vorhanden
Bodenbelag: Fliesen
Heizung: Gas-Etagenheizung / Heizkörper
Lage und Infrastruktur
Öffentliche Verkehrsanbindung - fußläufig
-) Buslinie Nr.: 14A 'Spengergasse' – ca. 1 Min., 12A 'Fendigasse' – ca. 3 Minuten
-) Straßenbahnlinien Nr. 1, 6,18, 62 - Station 'Matzleinsdorfer Platz'. ca. 10 Minuten
Für Fragen und Besichtigungstermine kontaktieren Sie Herrn Georg Zoltan, MSc unter 0676 88 03 03 01 oder georg.zoltan@plech.at
Infrastruktur / Entfernungen
Gesundheit
Arzt <500m
Apotheke <500m
Klinik <1.000m
Krankenhaus <1.000m
Kinder & Schulen
Schule <500m
Kindergarten <500m
Universität <500m
Höhere Schule <1.000m
Nahversorgung
Supermarkt <500m
Bäckerei <500m
Einkaufszentrum <1.000m
Sonstige
Geldautomat <500m
Bank <500m
Post <500m
Polizei <500m
Verkehr
Bus <500m
U-Bahn <500m
Straßenbahn <500m
Bahnhof <500m
Autobahnanschluss <3.500m
Angaben Entfernung Luftlinie / Quelle: OpenStreetMap
Ausstattung:
Etagenheizung, 2 Zimmer, 2 separate WCs, Dusche, Fliesen.Lage:
Region: Spengergasse / Stolberggasse. 0. Stockwerk.
Preisdetails
Gesamtmiete Netto: 999,44, Gesamtmiete USt: 199,89, Betriebskosten Netto: 181,44, Gesamtbelastung Netto: 999,44, Summe Miete Netto: 818,-, Summe Miete USt: 163,6, Mietpreis pro m²: 9,31, Kaution: 3 Bruttomonatsmieten. Provision: 3 Bruttomonatsmieten zzgl. 20% USt.Büro in Wien - Bild 2

Büro in Wien - Bild 3

Büro in Wien - Bild 4

Büro in Wien - Bild 5

Büro in Wien - Bild 6

Büro in Wien - Bild 7

Büro in Wien - Bild 8

Büro in Wien - Bild 9

Büro in Wien - Bild 10

Büro in Wien
Anbieter kontaktieren