Büro in 1120 Wien
Gewerbeimmobilie mieten Wien
Kurzbeschreibung: Zur Vermietung gelangt eine moderne Bürofläche in einem historischen Gebäude! Das alte Fabrikflair in Kombination mit dem neuen Dachgeschoss ergibt eine angenehme Arbeitsatmosphäre. Die Fläche befindet sich aktuell im Edelrohbau und wartet weiterlesenBüro Ausstattung:
Lift, Parkplatz, Klimaanlage, Fußbodenheizung, 1 Badezimmer, 5 separate WCs, Dusche, Pissoir, 2 Terrassen, Abstellraum, DV-Verkabelung.Energieausweis: HWB: 37.7 - fGEE: 0.56 - HWB Klasse: B - fGEE Klasse: A+
ERSTBEZUG & MITGESTALTEN - Moderne Bürofläche mit Terrasse & Klimaanlage im Dachgeschoss - Büro 01
Zur Vermietung gelangt eine moderne Bürofläche in einem historischen Gebäude! Das alte Fabrikflair in Kombination mit dem neuen Dachgeschoss ergibt eine angenehme Arbeitsatmosphäre.
Die Fläche befindet sich aktuell im Edelrohbau und wartet darauf nach Ihren Wünschen schlüsselfertig bezogen zu werden!
Highlights aus der Bau und Ausstattungsbeschreibung:
Klimaanlagen
Rasterdecken (Schallabsorption)
LED Beleuchtung
Innenliegender Sonnenschutz (Glasfasergewebe)
barrierefreier Zugang
VIDEORUNDGANG
LINK VIDEORUNDGANG: https://storage.justimmo.at/video/1080p/5sX6puCIqpOxJJfkDwJpuo.mp4
Eckdaten
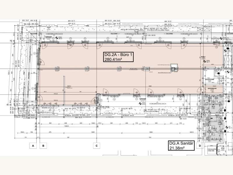
Bürofläche: ca. 280,41m²
Terrasse: ca. 108,11m²
Räume: sind nach belieben veränderbar
WC: 5 Herren & 3 Damen
Dusche: 1
Lift: Personenlift (barrierefrei)
Internet/Telefon: Glasfaser ist im Haus verlegt
Parkplätze: Verfügbar (á € 120,-)
Lage und Infrastruktur
Die gewerblich genutzte Immobilie liegt im 12. Wiener Gemeindebezirk in unmittelbarer Nähe zum Wilhelmsdorfer Park. In der Umgebung gibt es zahlreiche Restaurants, Supermärkte (wie Eurospar, Billa usw.), eine Apotheke sowie mehrere Drogeriemärkte. Das Bürogebäude ist hervorragend an den öffentlichen Nahverkehr angebunden. Die U-Bahn-Linie U4 (Station Längenfeldgasse) ist leicht erreichbar, und die S-Bahn- sowie U-Bahn-Station Wien Meidling liegt nur etwa 10 Gehminuten entfernt. Direkt vor dem Gebäude befindet sich eine Haltestelle für die Buslinie 63A und die Straßenbahnlinie 62.
Details zur öffentlichen Anbindung:
U-Bahn: U4 (Station Längenfeldgasse), U6 (Station Meidling)
Schnellbahn/Regionalzüge: Station Meidling (mehrere Linien)
Bus: 63A (Haltestelle Flurschützstraße/Längenfeldgasse)
Straßenbahn: 62 (Haltestelle Flurschützstraße/Längenfeldgasse)
Die zentrale Lage und die exzellente Verkehrsanbindung machen die Immobilie zu einem attraktiven Standort.
Kontakt
Für Fragen und Besichtigungen kontaktieren Sie bitte Herrn Georg Zoltan MSc, unter +43 676 88 03 03 01 oder unter georg.zoltan@plech.at
Infrastruktur / EntfernungenGesundheit
Arzt <500m
Apotheke <500m
Klinik <1.000m
Krankenhaus <1.000m
Kinder & Schulen
Schule <500m
Kindergarten <500m
Universität <1.000m
Höhere Schule <500m
Nahversorgung
Supermarkt <500m
Bäckerei <500m
Einkaufszentrum <1.000m
Sonstige
Geldautomat <1.000m
Bank <1.000m
Post <500m
Polizei <1.000m
Verkehr
Bus <500m
U-Bahn <1.000m
Straßenbahn <500m
Bahnhof <1.000m
Autobahnanschluss <3.000m
Angaben Entfernung Luftlinie / Quelle: OpenStreetMap
Ausstattung:
Lift, Parkplatz, Klimaanlage, Fußbodenheizung, 1 Badezimmer, 5 separate WCs, Dusche, Pissoir, 2 Terrassen, Abstellraum, DV-Verkabelung.Lage:
Region: U4 Längenfeldgasse / S-Bahn Meidling. 4. Stockwerk.
Preisdetails
Gesamtmiete Netto: 5.731,38, Gesamtmiete USt: 1.146,27, Betriebskosten Netto: 467,87, Gesamtbelastung Netto: 5.906,83, Heizkosten Netto: 175,45, Heizkosten USt: 35,09, Summe Miete Netto: 5.263,51, Summe Miete USt: 1.052,7, Mietpreis pro m²: 18,77, Kaution: 3 Bruttomonatsmieten. Provision: 3 Bruttomonatsmieten zzgl. 20% USt.Büro in Wien - Bild 2

Büro in Wien - Bild 3

Büro in Wien - Bild 4

Büro in Wien - Bild 5

Büro in Wien - Bild 6

Büro in Wien - Bild 7

Büro in Wien - Bild 8

Büro in Wien - Bild 9

Büro in Wien - Bild 10

Büro in Wien - Bild 11

Büro in Wien - Bild 12

Büro in Wien - Bild 13

Büro in Wien - Bild 14

Büro in Wien - Bild 15

Büro in Wien - Bild 16

Büro in Wien - Bild 17

Büro in Wien - Bild 18

Büro in Wien
Anbieter kontaktieren