Büro in 1120 Wien
Gewerbeimmobilie mieten Wien
Kurzbeschreibung: Das angebotene Objekt liegt im 12. Bezirk an der Breitenfurter Straße. Das Bürohaus aus den 1970er Jahren steht nunmehr zum Eigenausbau zur Verfügung. Der 1. und 2. Stock sind mittels behindertengerechtem Personenaufzug (1.100kg Traglast) von weiterlesenPrimärversorgungszentrum PVZ - Ärztezentrum - eigener Eingang, eigenes Stiegenhaus, eigener Lift - günstige Staffelmiete - ca. 660m2
Das angebotene Objekt liegt im 12. Bezirk an der Breitenfurter Straße. Das Bürohaus aus den 1970er Jahren steht nunmehr zum Eigenausbau zur Verfügung. Der 1. und 2. Stock sind mittels behindertengerechtem Personenaufzug (1.100kg Traglast) von der Straße bis zur Dachterrasse barrierefrei erschlossen.
Bauen Sie sich diese 2 Geschoße nach Ihren Wünschen aus - die Vermieterin bietet Ihnen dafür eine attraktive Staffelmiete, beginnend mit 9€ Hauptmietzins zzgl. Betriebskosten zzgl. USt pro m² an. Die von Ihnen geplante Nutzung muss sich innerhalb der Flächenwidmung 'GBBG' ('gemischte Bebauung – Betriebsbaugebiet') bewegen. Für die Einhaltung aller betriebsnotwendigen Auflagen ist der Mieter verantwortlich.
Ihnen steht das gesamte Gebäude zur Verfügung: Eigener Hauseingang, eigenes Stiegenhaus, Lift zu ausschließlichen Nutzung.
Eingang zum Haus und ca. 80m² Empfangsbereich im EG
1. Stock besteht aus
Raum ca. 25m²
Raum ca. 53m²
Raum ca. 203m²
Verkehrswegen
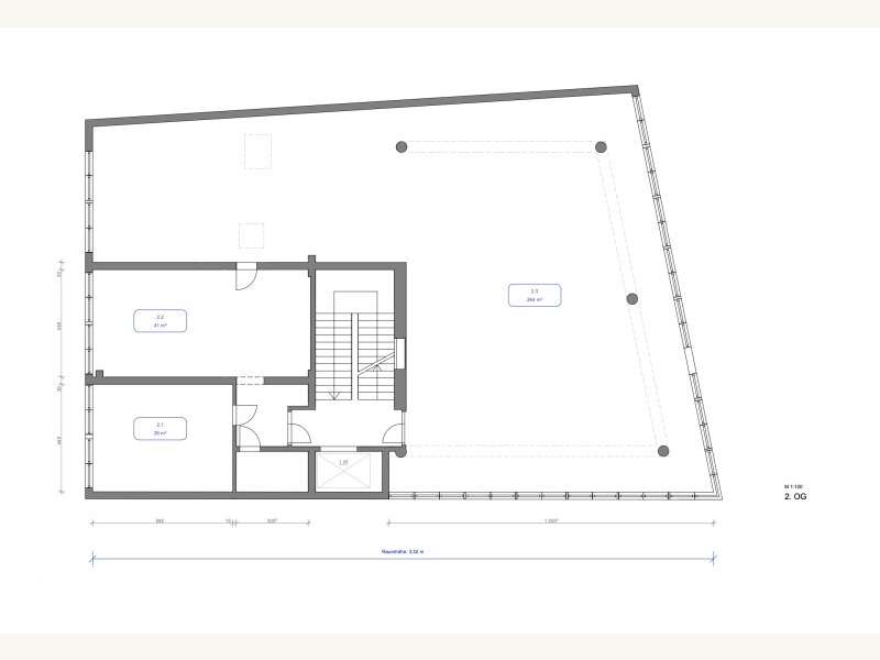
2. Stock besteht aus
Raum ca. 26m²
Raum ca. 41m²
Raum ca. 264m²
Verkehrswegen
Flachdach mit zugelassener Terrasse und eigenem Lift-Austieg.
Alle Räume verfügen über großzügige Fensterflächen.
Der Zustand wie abgebildet ist auch jener der Übergabe.
Hinweis gemäß Energieausweisvorlagegesetz: Ein Energieausweis wurde vom Eigentümer bzw. Verkäufer, nach unserer Aufklärung über die generell geltende Vorlagepflicht, sowie Aufforderung zu seiner Erstellung noch nicht vorgelegt. Daher gilt zumindest eine dem Alter und der Art des Gebäudes entsprechende Gesamtenergieeffizienz als vereinbart. Wir übernehmen keinerlei Gewähr oder Haftung für die tatsächliche Energieeffizienz der angebotenen Immobilie.
Wir weisen darauf hin, dass zwischen dem Vermittler und dem zu vermittelnden Dritten ein familiäres oder wirtschaftliches Naheverhältnis besteht.
Der Vermittler ist als Doppelmakler tätig.
Infrastruktur / EntfernungenGesundheit
Arzt <750m
Apotheke <250m
Klinik <1.250m
Krankenhaus <1.250m
Kinder & Schulen
Schule <750m
Kindergarten <250m
Universität <2.500m
Höhere Schule <2.250m
Nahversorgung
Supermarkt <250m
Bäckerei <250m
Einkaufszentrum <1.500m
Sonstige
Geldautomat <500m
Bank <500m
Post <500m
Polizei <1.000m
Verkehr
Bus <250m
U-Bahn <1.000m
Straßenbahn <250m
Bahnhof <500m
Autobahnanschluss <1.000m
Angaben Entfernung Luftlinie / Quelle: OpenStreetMap
Lage:
Region: nähe Hetzendorfer Straße.
Preisdetails
Gesamtmiete Netto: 10,3, Gesamtmiete USt: 2,06, Betriebskosten Netto: 1,3, Gesamtbelastung Netto: 10,3, Summe Miete Netto: 9,-, Summe Miete USt: 1,8, Mietpreis pro m²: 0,01, Kaution: 3 Bruttomonatsmieten. Provision: 3 Bruttomonatsmieten zzgl. 20% USt.Büro in Wien - Bild 2

Büro in Wien - Bild 3

Büro in Wien - Bild 4

Büro in Wien - Bild 5

Büro in Wien - Bild 6

Büro in Wien - Bild 7

Büro in Wien
Anbieter kontaktieren