Einfamilienhaus in 2552 Hirtenberg

Haus kaufen Hirtenberg
Kurzbeschreibung: Zum Verkauf steht ein hochwertig saniertes und laufend modernisiertes Einfamilienhausmit 5 Zimmern, großem Garten sowie Swimmingpool – ideal für Familien, die Ruhe und Wohnkomfort schätzen. Die Liegenschaft wurde 2014 umfassend saniert weiterlesenEinfamilienhaus Ausstattung:
Garage, 1 Stellplatz, offener Kamin, Etagenheizung, 5 Zimmer, 1 Badezimmer, Swimmingpool, 1 Terrassen, Gartennutzung.Energieausweis: HWB: 129. - fGEE: 1.200 - HWB Klasse: D - fGEE Klasse: C
🏡 Bei Leobersdorf - Hochwertig saniert, liebevoll modernisiert – ein Haus mit Niveau
Zum Verkauf steht ein hochwertig saniertes und laufend modernisiertes Einfamilienhausmit 5 Zimmern, großem Garten sowie Swimmingpool – ideal für Familien, die Ruhe und Wohnkomfort schätzen.
Die Liegenschaft wurde 2014 umfassend saniert (Fenster, Dachstuhl, Fassade, Elektrik). In den Jahren 2022/23 erfolgten weitere Modernisierungen wie ein neues Badezimmer, neue Bodenbeläge sowie eine großzügige Grundrissöffnung im Wohn-/Essbereich.
Herzstück des Hauses ist die ca. 60 m² große Wohnküche mit direktem Zugang zur Terrasse und zum Pool.
Das Haus wird mittels Photovoltaikanlage und Gastherme beheizt, zusätzlich steht ein Festbrennstoffgerät zur Verfügung.
Highlights
• Topmodernisierte Wohnküche (ca. 60 m²)
• Swimmingpool & 2 Terrassen
• ruhige Sackgassenlage
• vollunterkellert mit Partyraum
• energieeffiziente Heizung (PV + Gas)
• liebevoll gestalteter Garten
• Doppelgarage
_____
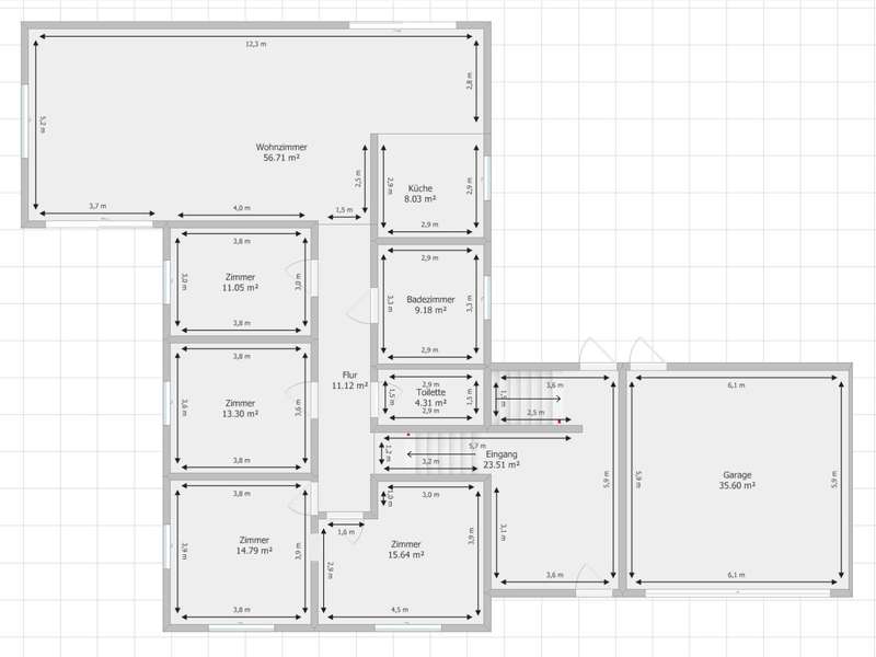
Raumaufteilung
Erdgeschoss:
• Vorraum / Diele
• 4 Schlafzimmer
• großer Wohn-/Essbereich mit offener Küche
• Badezimmer
• Gäste-WC
Kellergeschoss:
• 4 weitere Räume
• Heizraum
• Partyraum
AuĂźenbereich:
• Pool
• gepflegter Garten
• Geräteschuppen
• Doppelgarage
_____
Lage:
Nahversorger, Schulen, Ärzte und Restaurants sind in wenigen Minuten erreichbar. Eine ideale Wohnlage für Familien in ruhiger Umgebung mit bester Infrastruktur. Der Bahnhof Hirtenberg ist nur wenige Minuten zu Fuß entfernt.
Bahnhof Hirtenberg: R96
Bahnhof Leobersdorf: S-Bahn & RegionalzĂĽge
Autobahn: A2 Leobersdorf
Zögern Sie nicht, uns für weitere Informationen oder eine Besichtigung zu kontaktieren.
Gerne senden wir Ihnen mehrere Informationen per E-Mail-Anfrage. FĂĽr weitere AuskĂĽnfte, oder einen Besichtigungstermin steht Ihnen gerne jederzeit Herr Erich Schuller unter der Telefonnummer +43 664 51 55 837 oder per E-Mail schuller@4m-immo.at zur VerfĂĽgung.
BITTE BEACHTEN SIE, DASS WIR AUFGRUND DER NACHWEISPFLICHT GEGENÜBER DEM EIGENTÜMER NUR ANFRAGEN MIT VOLLSTÄNDIGER ANGABE DER ANSCHRIFT BEARBEITEN KÖNNEN.
Irrtümer und Änderungen vorbehalten!
VERKAUFEN AUCH SIE DERZEIT IHRE IMMOBILIE?
Profitieren Sie von unserem umfassenden Service und unserer jahrzehntelangen Erfahrung!
Durch Partnerschaften mit unserem Anwalt, Notar und unabhängigen Finanzierern stellen wir Ihnen eine schnellstmögliche Abwicklung zur Verfügung und können Ihnen dadurch eine effiziente Abwicklung garantieren. Wir bieten Ihnen die BESTE Rundum-Betreuung.Angaben gemäß gesetzlichem Erfordernis:
Heizwärmebedarf:129.7 kWh/(m²a)Klasse Heizwärmebedarf:DFaktor Gesamtenergieeffizienz:1.2Klasse Faktor Gesamtenergieeffizienz:C
Ausstattung:
Garage, 1 Stellplatz, offener Kamin, Etagenheizung, 5 Zimmer, 1 Badezimmer, Swimmingpool, 1 Terrassen, Gartennutzung.Preisdetails
Kaufpreis: 598.000,-, monatliche Kosten: 312,56. Provision: 3.00 %.Essbereich

Wohnzimmer

Terrasse

Zimmer 1

Zimmer 2

KĂĽche

Eingangsbereich

Badezimmer

Garten

Partykeller

Keller Vorraum

Grundriss

Einfamilienhaus in Hirtenberg
Anbieter kontaktieren