Haus in 1210 Wien
Haus kaufen Wien
Kurzbeschreibung: Willkommen in Ihrem neuen Zuhause in Wien-Floridsdorf! Dieses exquisite Haus bietet Ihnen die perfekte Kombination aus modernem Wohnen und einer ruhigen, familienfreundlichen Umgebung. Zum Verkauf gelangt ein in Errichtung befindliches weiterlesenHaus Ausstattung:
Parkplatz, 1 Stellplatz, Fußbodenheizung, 5 Zimmer, 3 Badezimmer, 3 separate WCs, Dusche, Badewanne, Badezimmer mit Fenster, Abstellraum, Fliesen, Parkett.Energieausweis: HWB: 32 - fGEE: 0.66 - HWB Klasse: B - fGEE Klasse: A+
Einzelhaus - Traumhafter-Erstbezug in Wien: 5 Zimmer, Garten & moderne Ausstattung! Baurechtsgrund!
Willkommen in Ihrem neuen Zuhause in Wien-Floridsdorf! Dieses exquisite Haus bietet Ihnen die perfekte Kombination aus modernem Wohnen und einer ruhigen, familienfreundlichen Umgebung.
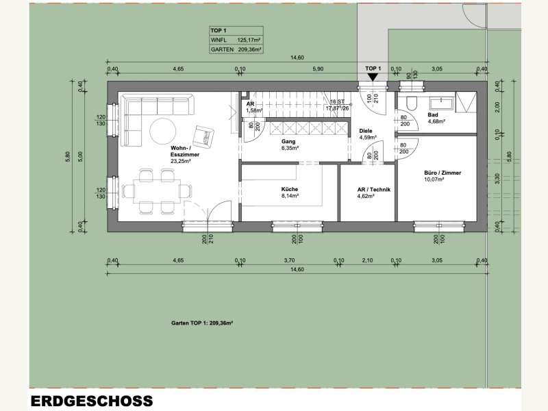
Zum Verkauf gelangt ein in Errichtung befindliches Einzelhaus mit ca. 125,17m² Wohnfläche, Parkplatz inkl. vorbereiteter E-Ladestation und einem privaten Garten mit ca. 209,36m². Das massive Holzhaus wird auf einem Baurechtsgrund (99 Jahre) in der Kerpengasse errichtet.
Auf dem Grundstück werden insgesamt zwei freistehende Einfamilienhäuser in versetzter Form errichtet.
Raumaufteilung der Wohnfläche: ca. 125,17m²
Erdgeschoss
Diele: ca. 4,59m²
Gang: ca. 6,35m²
Wohnbereich + Küche: ca. 31,39m²
Büro / Zimmer: ca. 10,07m²
Bad: ca. 4,68m²
AR / Technik: 4,62m²
AR: ca. 1,58m²
Obergeschoss
Zimmer: ca. 13,09m²
Zimmer: ca. 12,01m²
Zimmer: ca. 11,61m²
Bad: ca. 7,50m²
Bad: ca. 6,29m²
Schrankraum: ca. 4,73m²
Gang: ca. 6,66m²
Ausstattungsmerkmale:
Heizungsart: Luftwärmepumpe / Fußbodenheizung
Photovoltaik: vorbereitet
3 Bäder + 3 WCs
privater Parkplatz am Grundstück
Kaufvarianten:
Belagsfertig: EUR 525.000,-
Schlüsselfertig: EUR 560.000,-
Baurechtszins: EUR 392,- pro Monat / Laufzeit 99 Jahre / Grundbücherlich gesichert mittels Baurechtseinlage
Kontakt
Für Fragen und Besichtigungstermine kontaktieren Sie Herrn Georg Zoltan, MSc unter 0676 88 03 03 01 oder georg.zoltan@plech.at
Infrastruktur / EntfernungenGesundheit
Arzt <1.500m
Apotheke <1.500m
Klinik <3.000m
Krankenhaus <3.000m
Kinder & Schulen
Schule <1.000m
Kindergarten <1.000m
Universität <2.500m
Höhere Schule <2.500m
Nahversorgung
Supermarkt <1.500m
Bäckerei <1.500m
Einkaufszentrum <2.500m
Sonstige
Geldautomat <1.500m
Bank <1.500m
Post <2.000m
Polizei <1.000m
Verkehr
Bus <500m
U-Bahn <3.000m
Straßenbahn <1.500m
Bahnhof <1.500m
Autobahnanschluss <500m
Angaben Entfernung Luftlinie / Quelle: OpenStreetMap
Ausstattung:
Parkplatz, 1 Stellplatz, Fußbodenheizung, 5 Zimmer, 3 Badezimmer, 3 separate WCs, Dusche, Badewanne, Badezimmer mit Fenster, Abstellraum, Fliesen, Parkett.Lage:
In unmittelbarer Nähe zur Kerpengasse profitieren Sie von einer hervorragenden Infrastruktur. Schulen und Kindergärten sind fußläufig erreichbar sowie die Anbindung an öffentliche Verkehrsmittel wie Busse und der schnelle Zugang zur Autobahn machen diese Lage besonders attraktiv für Familien und Pendler.Region: Kerpengasse. 2 Etage.
Preisdetails
monatlicher Baurechtszins EUR 392,- / Laufzeit: 99 Jahre (Chorherrenstift Klosterneuburg).Kaufpreis: 525.000,-, Kaufpreis brutto: 525.000,-, monatliche Kosten: 392,-, Kosten Netto: 392,-, Sonstige Kosten Netto: 392,-. Provision: 3% des Kaufpreises zzgl. 20% USt.
Haus in Wien - Bild 2

Haus in Wien - Bild 3

Haus in Wien - Bild 4

Haus in Wien - Bild 5

Haus in Wien
Anbieter kontaktieren