Mietwohnung in 8010 Graz
Wohnfläche: 105,25 m² - Miete: € 1.213,85
Wohnung mieten Graz
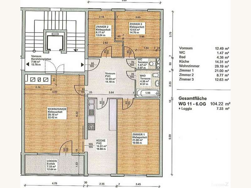
Kurzbeschreibung: Vorraum-Diele, Badezimmer mit Dusche, Toilette, Wohnküche möbliert mit Geschirrspüler und Platz für einen Essbereich. Vom Wohnzimmer gelangt man auf eine ca. 7 m² große verglaste Loggia. 2 weitere Zimmer und ein kleines Zimmer. Zur Wohnung weiterlesenMietwohnung Ausstattung:
Lift, 1 Stellplatz, unterkellert, WG geeignet, barrierefrei, Fernwärme, 4 Zimmer, Einbauküche, 1 Badezimmer, 1 separates WC, Dusche, 1 Loggia, Parkett.Energieausweis: HWB: 28.10 - fGEE: 1.2 - HWB Klasse: B - fGEE Klasse: C
Geidorf: Großzügige 4 Zimmer-Mietwohnung, verglaste Loggia, WEG geeignet.
Vorraum-Diele, Badezimmer mit Dusche, Toilette, Wohnküche möbliert mit Geschirrspüler und Platz für einen Essbereich. Vom Wohnzimmer gelangt man auf eine ca. 7 m² große verglaste Loggia. 2 weitere Zimmer und ein kleines Zimmer. Zur Wohnung kann eventuell ein Parkplatz in der offenen Garage extra um 65 Euro / Monat angemietet werden. Die Heizkosten können sich etwas erhöhen. Ein Büroaufwand in der Höhe von 1 x Euro 160,- ist an die Hausverwaltung zu bezahlen.
Ausstattung:
Lift, 1 Stellplatz, unterkellert, WG geeignet, barrierefrei, Fernwärme, 4 Zimmer, Einbauküche, 1 Badezimmer, 1 separates WC, Dusche, 1 Loggia, Parkett.alle Zimmer separiert begehbar - WG geeignet, verglaste Loggia, 1 Autoabstellplatz in der offenen Garage, ist um ca. 65 Euro/Monat anmietbar.
Lage:
GEIDORF - zwischen Geidorfplatz und WIFI, nahe der Kreuzschwestern, KF-Uni in guter ErreichbarkeitFernblick, 6. Stockwerk, 8 Etage.
Preisdetails
inkl. BK, HK und gesetzl. MwSt..Gesamtmiete: 1.213,85, Gesamtmiete Netto: 1.103,5, Gesamtmiete USt: 110,35, Betriebskosten Netto: 246,74, Gesamtbelastung: 1.290,-, Gesamtbelastung Netto: 1.166,96, Heizkosten Netto: 63,46, Heizkosten USt: 12,69, Summe Miete Netto: 856,76, Summe Miete USt: 85,68, Kaution: Überweisung. Kaution: 3.870,-. Provision: provisionsfrei .
Parkplatz event. anmietbar

Lift vorhanden

Ausblick von der Loggia

Verglaste Loggia

Wohnzimmer

Mietwohnung in Graz - Bild 7

Mietwohnung in Graz - Bild 8

Mietwohnung in Graz - Bild 9

Zimmer strassenseitig

Bad

extra Wc

1 Zimmer hofseitig

2 Zimmer hofseitig

Diele

Ess-Küche

verglaste Loggia

Essplatz in der Küche

Grundriss

Essküche

Küche

Aussicht in den Innenhof

Platz für eine Waschmaschine

Vorzimmer

Mietwohnung in Graz
Anbieter kontaktieren