Einfamilienhaus in 8480 Mureck
Haus kaufen Mureck
Kurzbeschreibung: Zum Verkauf steht ein räumlich gut eingeteiltes, lichtdurchflutendes Wohnhaus, welche erst neu errichtet wird wobei alle dafür notwendigen Unterlagen zum Baubeginn bereits vorhanden sind. Baustart ist mit Unterfertigung des Kaufvertrages weiterlesenEinfamilienhaus Ausstattung:
Carport, 2 Stellplätze, Fußbodenheizung, 5 Zimmer, 1 Badezimmer, 2 separate WCs, Dusche, Badezimmer mit Fenster, 1 Terrassen, Fliesen, Parkett.Energieausweis: HWB: 42 - fGEE: 0.65 - HWB Klasse: B - fGEE Klasse: A+
Schlüsselfertiges Neubau- Wohnhaus in sehr guter Lage mit Terrasse und Garten sowie zwei Carports
Zum Verkauf steht ein räumlich gut eingeteiltes, lichtdurchflutendes Wohnhaus, welche erst neu errichtet wird wobei alle dafür notwendigen Unterlagen zum Baubeginn bereits vorhanden sind.
Baustart ist mit Unterfertigung des Kaufvertrages samt Bauträgervertrag ehestmöglich machbar.
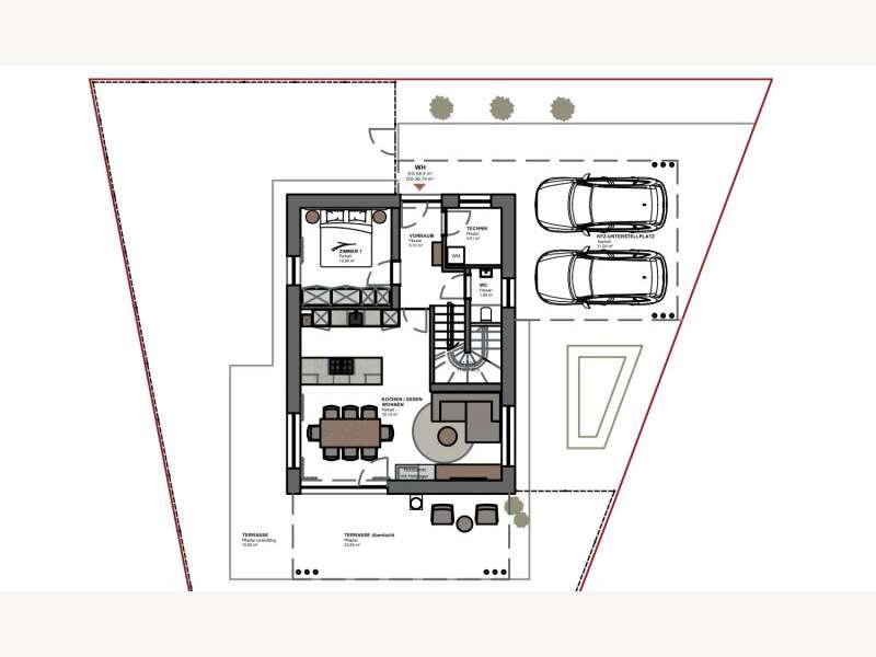
Das Wohnhaus hat zwei Carportstellplätze welche auch im Kaufpreis inkludiert sind.
Das schlüsselfertige Haus wird in Ziegel mit VWS errichtet. Die nicht tragenden Innenwände werden in Leichtbau ausgeführt. Verkehrsflächen sind asphaltiert und die Gehwege sind gepflastert. Eine Bau und Ausstattungsbeschreibung ist vorhanden.
Die Einteilung im EG und OG sowie die Lage des Carport samt Freiflächen finden sie auf den beigefügten Plänen.
Im EG ist ein Kaminanschluss vorbereitet. Weiters gibt es zwei Terrassen wobei eine überdacht ist. Der nutzbare ca. 270 m² Garten wird mit einem Stabgittermattenzaun samt einer Gartentüre eingezäunt.
Das OG der Haushälfte ist gut über die eigene, innenliegende Stiege zu erreichen.
Die Beheizung erfolgt über die örtliche Nahwärme. Glasfaseranschluss im Wohnzimmer vorbereitet.
Weiters wäre es möglich, auf Kosten des Käufers, auch die bereits eingereichte und bewilligte PV-Anlage installieren lassen. Die Vorbereitung bzw. die dafür notwendigen Leerverrohrungen sind im Kaufpreis inkludiert.
Das gesamte Grundstück in dreiecksform hat 502 m² und ist direkt von der Gemeindestrasse zu befahren.
Der angegebene Kaufpreis ist ein Endverbraucherpreis und ist inkl. 20% Ust zu Verstehen.
Die ortsüblichen Kaufnebenkosten (ca. 10%) kommen zu dem angegebenen Kaufpreis hinzu.
Wir weisen darauf hin, dass zwischen dem Vermittler und dem zu vermittelnden Dritten ein familiäres oder wirtschaftliches Naheverhältnis besteht.
Ausstattung:
Carport, 2 Stellplätze, Fußbodenheizung, 5 Zimmer, 1 Badezimmer, 2 separate WCs, Dusche, Badezimmer mit Fenster, 1 Terrassen, Fliesen, Parkett.Lage:
Stadt Mureck, im ruhigem, am östlichen StadtrandRegion: Stadtzentrum. 2 Etage.
Preisdetails
KAUFPREIS IST SCHLÜSSELFERTIG.Kaufpreis: 409.000,-, Kaufpreis brutto: 409.000,-, Kaufpreis pro m²: 3.556,52. Provision: 3% des Kaufpreises zzgl. 20% USt.
Einfamilienhaus in Mureck - Bild 2

Einfamilienhaus in Mureck - Bild 3

Einfamilienhaus in Mureck - Bild 4

Einfamilienhaus in Mureck - Bild 5

Einfamilienhaus in Mureck - Bild 6

Einfamilienhaus in Mureck - Bild 7

Einfamilienhaus in Mureck - Bild 8

Einfamilienhaus in Mureck - Bild 9

Einfamilienhaus in Mureck - Bild 10

Einfamilienhaus in Mureck - Bild 11

Einfamilienhaus in Mureck - Bild 12

Einfamilienhaus in Mureck - Bild 13

Einfamilienhaus in Mureck - Bild 14

Einfamilienhaus in Mureck
Anbieter kontaktieren