Loft-Studio-Atelier in 4600 Wels
Wohnfläche: 58,02 m² - Miete: € 698,46
Wohnung mieten Wels
Kurzbeschreibung: Diese Wohnung befindet sich in einem historischen Gebäude mitten am Welser Stadtplatz. Das Objekt ist mit schönen Parkettböden ausgestattet und verfügt über eine moderne Einbauküche. Diese ist fixer Bestandteil der Wohnung und somit ohne weiterlesenLoft-Studio-Atelier Ausstattung:
Lift, Zentralheizung, 1 Zimmer, Einbauküche.Energieausweis: HWB: 70.80 - fGEE: 1.71 - HWB Klasse: C - fGEE Klasse: C
Elegante Loft-Wohnung mit Stuckdecken & Intarsientüren
Diese Wohnung befindet sich in einem historischen Gebäude mitten am Welser Stadtplatz.
Das Objekt ist mit schönen Parkettböden ausgestattet und verfügt über eine moderne Einbauküche. Diese ist fixer Bestandteil der Wohnung und somit ohne Ablöse.
Die Wohnung befindet sich im 1. Obergeschoss und ist auch mittels Lift erreichbar.
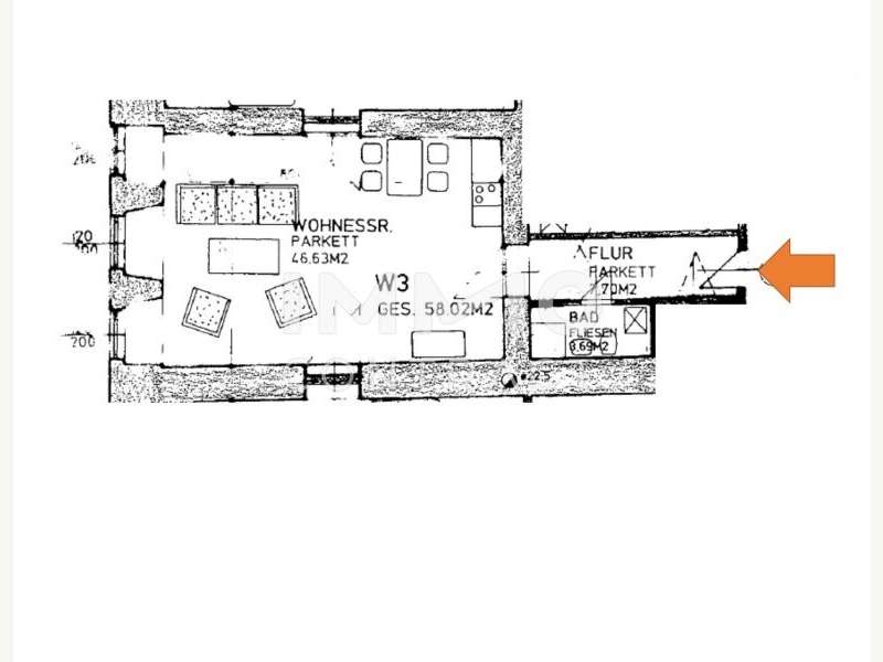
Raumaufteilung: Vorraum, Badezimmer / WC, Wohn-Ess-Schlafbereich mit moderner Küche.
Der Immobilienmakler erklärt, dass er - entgegen dem in der Immobilienwirtschaft üblichen Geschäftsgebrauch des Doppelmaklers - einseitig nur für den Vermieter tätig ist.
Ausstattung:
Lift, Zentralheizung, 1 Zimmer, Einbauküche.Lage:
Stadtplatz WelsRegion: Wels. 1. Stockwerk.
Preisdetails
Gesamtmiete: 698,46, Hauptmietzins Netto: 487,37, Hauptmietzins USt: 48,74, Betriebskosten Netto: 147,59, Gesamtbelastung: 738,06, Gesamtbelastung Netto: 667,96, Heizkosten Netto: 33,-, Heizkosten USt: 6,6, Summe Miete Netto: 487,37, Summe Miete USt: 48,74, Kaution: 2.096,-. Provision: Gemäß Erstauftraggeberprinzip bezahlt der Abgeber die Provision.P6114109

Titelbild

P6114111

P6114108

P6114114

P6114116

P6114117

P6114124

P6114125

P6114127

Plan

qrcode_www.immocontract.at (2)

Loft-Studio-Atelier in Wels
Anbieter kontaktieren