Büro in 4600 Wels
Gewerbeimmobilie kaufen Wels
Kurzbeschreibung: "Penthouse-Büro" BahnhofCITY in Wels Das Penthouse-Büro befindet sich im Herzen von Wels. Die zentrale Lage in der BahnhofCITY in Wels garantiert eine exzellente Erreichbarkeit und beste Anbindung an den öffentlichen Nah- und Fernverkehr. weiterlesenBüro Ausstattung:
Lift, Zentralheizung, 13 Zimmer, Einbauküche, 4 separate WCs.Energieausweis: HWB: 21 - fGEE: 0.87 - HWB Klasse: B - fGEE Klasse: B
"Penthouse-Büro" in der BahnhofCITY Wels"
'Penthouse-Büro' BahnhofCITY in Wels
Das Penthouse-Büro befindet sich im Herzen von Wels. Die zentrale Lage in der BahnhofCITY in Wels garantiert eine exzellente Erreichbarkeit und beste Anbindung an den öffentlichen Nah- und Fernverkehr.
Wels, als bedeutender Wirtschaftsstandort, bietet eine optimale Infrastruktur für Unternehmen verschiedenster Branchen.
Die Nähe zu Geschäften, Restaurants und Cafés sowie vielfältigen Dienstleistungsangeboten sorgt für ein lebendiges Umfeld und eine hohe Lebensqualität. Geschäftspartner und Mitarbeiter werden die Vorzüge dieser zentralen Lage ebenso zu schätzen wissen.
Bürofläche:
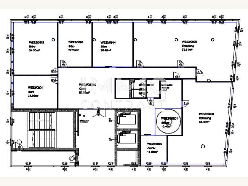
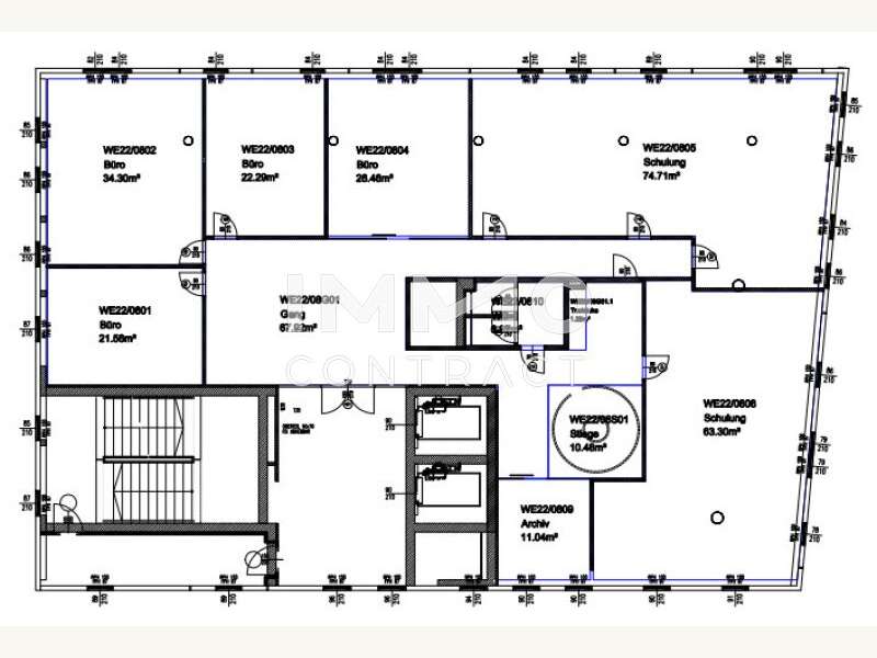
+ Gesamtfläche: zweigeschossiges Büro rund 674 m² im 7. u. 8. OG. mit
traumhaften Fernblick über die Stadt
+ Tiefgaragenplätze: 5 Stellplätze
+ Verfügbarkeit ab sofort
Ausstattung:
+ Hochwertige Bürofläche: Profitieren Sie von einer gut durchdachten
Raumaufteilung und optimalen Arbeitsbedingungen in einer der gefragtesten
Lagen in Wels
+ Klimatisierung: Beide Geschosse sind klimatisiert, um ein angenehmes
Arbeitsklima auch in den Sommermonaten zu gewährleisten
+ IT-Infrastruktur: Vorhandene IT-Infrastruktur ermöglicht eine sofortige und
nahtlose Integration Ihrer technischen Anforderungen.
Kaufpreis:
EUR 1.699.000,- zzgl. 20% USt
zzgl. Kaufnebenkosten
Ergreifen Sie die Chance und investieren Sie in eine erstklassige Bürofläche, die allen Anforderungen moderner Geschäftswelten entspricht.
Wir freuen uns darauf, Ihnen das Penthouse-Büro persönlich vorstellen zu dürfen.
Infrastruktur / EntfernungenGesundheit
Arzt <500m
Apotheke <500m
Klinik <500m
Krankenhaus <1.500m
Kinder & Schulen
Schule <500m
Kindergarten <500m
Universität <500m
Nahversorgung
Supermarkt <500m
Bäckerei <500m
Einkaufszentrum <2.500m
Sonstige
Bank <500m
Geldautomat <500m
Post <500m
Polizei <1.000m
Verkehr
Bus <500m
Autobahnanschluss <2.500m
Bahnhof <500m
Flughafen <2.500m
Angaben Entfernung Luftlinie / Quelle: OpenStreetMap
Ausstattung:
Lift, Zentralheizung, 13 Zimmer, Einbauküche, 4 separate WCs.Lage:
Direkt am Bahnhof in WelsPreisdetails
Kaufpreis: 2.038.800,-, Kaufpreis netto: 1.699.000,-, Kaufpreis brutto: 2.038.800,-, Kaufpreis Ust: 339.800,-, Betriebskosten Netto: 2.806,24, Heizkosten Netto: 545,12, Heizkosten USt: 109,02, Kosten Netto: 3.938,19, Kosten USt: 670,27, Sonstige Kosten Netto: 586,83, Kaufpreis pro m²: 2.520,77. Provision: 3% des Kaufpreises zzgl. 20% USt.20241204_101929

20241204_101941

Teeküche

Büro in Wels - Bild 5

Büro in Wels - Bild 6

Büro in Wels - Bild 7

20241204_102133

20241204_102119

20241204_102029

Innenraum 5

20241204_102213

Großraumbüro 2

20241204_102054

Innenraum

Grundriss 7. Obergeschoss BT.C

Grundriss 8. Obergeschoss BT.C

Büro in Wels
Anbieter kontaktieren