Praxis in 2500 Baden
Gewerbeimmobilie mieten Baden
Kurzbeschreibung: Inmitten der charmanten Stadt Baden, in hervorragender zentraler Lage, ist diese Praxis zur Miete ab sofort verfügbar. Die Ordination verfügt über eine großzügige Nutzfläche von ca. 110 m² und verteilt sich auf fünf einladende Räume, weiterlesenPraxis Ausstattung:
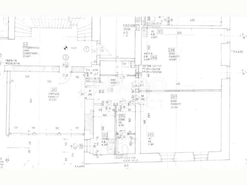
Lift, 5 Zimmer, 1 separates WC, Teeküche, Fliesen, Fertigparkett, Laminat.Energieausweis: HWB: 68.4 - HWB Klasse: C
Praxisräumlichkeiten in perfekter, zentraler Lage von Baden
Inmitten der charmanten Stadt Baden, in hervorragender zentraler Lage, ist diese Praxis zur Miete ab sofort verfügbar.
Die Ordination verfügt über eine großzügige Nutzfläche von ca. 110 m² und verteilt sich auf fünf einladende Räume, die vielfältige Nutzungsmöglichkeiten bieten.
Das Interieur besticht durch hochwertige Materialien: Der Bodenbelag variiert zwischen elegantem Fertigparkett, pflegeleichtem Laminat und stilvollen Fliesen, was jedem Raum einen individuellen Charakter verleiht.
Ein zusätzliches Gäste-WC sorgt für Komfort für Sie und Ihre Besucher.
Diese Praxis ist ideal geeignet für Gesundheitsdienstleister und Fachleute, die Wert auf eine repräsentative und zugleich funktionale Arbeitsumgebung legen.
Erleben Sie den Charme und die Zweckmäßigkeit dieser Immobilie selbst und vereinbaren Sie einen Besichtigungstermin, um Ihr neues berufliches Zuhause zu entdecken.
Wir weisen darauf hin, dass zwischen dem Vermittler und dem zu vermittelnden Dritten ein familiäres oder wirtschaftliches Naheverhältnis besteht.
Der Vermittler ist als Doppelmakler tätig.
Infrastruktur / EntfernungenGesundheit
Arzt <500m
Apotheke <500m
Klinik <500m
Krankenhaus <2.000m
Kinder & Schulen
Schule <500m
Kindergarten <500m
Höhere Schule <8.500m
Universität <9.500m
Nahversorgung
Supermarkt <500m
Bäckerei <500m
Einkaufszentrum <5.500m
Sonstige
Bank <500m
Geldautomat <500m
Polizei <1.000m
Post <500m
Verkehr
Bus <500m
Bahnhof <500m
Autobahnanschluss <4.000m
Straßenbahn <500m
Flughafen <5.500m
Angaben Entfernung Luftlinie / Quelle: OpenStreetMap
Ausstattung:
Lift, 5 Zimmer, 1 separates WC, Teeküche, Fliesen, Fertigparkett, Laminat.Lage:
Diese exklusive Praxis befindet sich in der charmanten Stadt Baden, die im Herzen Niederösterreichs liegt. Baden ist bekannt für seine malerische Umgebung und die Nähe zur lebendigen Hauptstadt Wien, die nur eine kurze Autofahrt entfernt ist. Diese Lage ermöglicht es, sowohl die Ruhe einer idyllischen Kleinstadt als auch die Vorteile einer großen Metropole zu genießen.Die Praxis liegt im Zentrum von Baden, eingebettet in ein gut erschlossenes Gebiet, das sowohl mit dem Auto als auch mit öffentlichen Verkehrsmitteln leicht erreichbar ist. In der näheren Umgebung befinden sich zahlreiche Geschäfte, Cafés und Restaurants, die eine angenehme Atmosphäre schaffen und zum Verweilen einladen.
Durch die zentrale Lage profitieren Ihre Kunden und Mitarbeitenden von einer ausgezeichneten Infrastruktur. Öffentliche Verkehrsmittel, wie Bus- und Bahnhaltestellen, sind bequem zu Fuß erreichbar, was das Pendeln vereinfacht. Die Nähe zu wichtigen Verkehrsknotenpunkten sorgt für eine optimale Anbindung sowohl nach Wien als auch in andere Teile der Region.
Zusätzlich bietet Baden zahlreiche Annehmlichkeiten, darunter renommierte Bildungseinrichtungen, Gesundheitsdienstleister und vielfältige Freizeitmöglichkeiten, die zur Attraktivität dieser Lage beitragen. Die Umgebung ist geprägt von historischen Sehenswürdigkeiten und prachtvollen Grünflächen, die reichlich Gelegenheit für Erholung und Entspannung bieten.
Wenn Sie nach einem Standort für Ihre Praxis suchen, der sowohl durch seine regionale Bedeutung als auch durch seine hervorragende Infrastruktur besticht, ist diese Lage in Baden die ideale Wahl.
Preisdetails
Gesamtmiete Netto: 1.778,48, Gesamtmiete USt: 329,39, Betriebskosten Netto: 263,08, Gesamtbelastung Netto: 1.778,48, Summe Miete Netto: 1.515,4, Summe Miete USt: 303,08, Mietpreis pro m²: 16,53, Kaution: 6.323,61.20250310_174948

20250310_175048

20250310_175011

20250310_180211

20250310_174927

Raumplan_002_

Praxis in Baden
Anbieter kontaktieren