Doppelhaushälfte in 2352 Gumpoldskirchen
Haus kaufen Gumpoldskirchen
Kurzbeschreibung: Dieses Angebot ist für eine Doppelhaushälfte die noch zu errichten ist! Sie kaufen das Grundstück und beauftragen den Generalunternehmer Ihres Vertrauens. Der angegebene Preis basiert auf einer Kalkulation eines Unternehmens mit dem der weiterlesenDoppelhaushälfte Ausstattung:
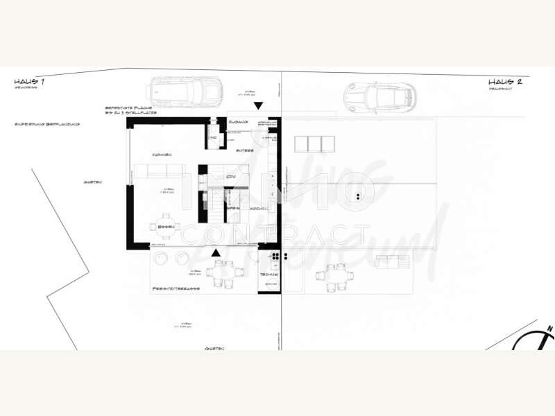
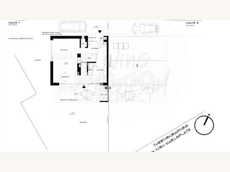
Fußbodenheizung, 4 Zimmer, 1 Badezimmer, 2 separate WCs.Doppelhaushälfte am Wasser in Gumpoldskirchen
Dieses Angebot ist für eine Doppelhaushälfte die noch zu errichten ist!
Sie kaufen das Grundstück und beauftragen den Generalunternehmer Ihres Vertrauens. Der angegebene Preis basiert auf einer Kalkulation eines Unternehmens mit dem der Eigentümer bereits positive Erfahrungen hat.
Bauweise: ziegelmassiv, optional Holzfassade (burnt wood),
Satteldach (Eternit), Fenster KU/Alu (Actual) 3fach Verglasung,
nicht unterkellert
Wärmeverteilung: Fussbodenheizung, optional Deckenkühlung
Stellplatz: drei Stellplätze am Eigengrund vorgesehen
Liegenschaft: Haus 1 - 374 m² - Haus 2 - 406 m²
Energie: Primärversorgung Wärmepumpe mittels gem.
Erdsonde, Wohnraumlüftung mit Wärmerückgewinnung,
Kachelofen vorbereitet, Photovoltaik vorbereitet
Für weitere Informationen oder zur Vereinbarung eines Besichtigungstermins stehen wir Ihnen gerne zur Verfügung.
Kontakt: Martin MELCHER 0677 617 324 39
Erfüllen Sie sich den Traum von einem Leben inmitten der Weinberge – wir freuen uns auf Ihre Anfrage!
Infrastruktur / EntfernungenGesundheit
Arzt <1.000m
Apotheke <2.000m
Klinik <2.000m
Krankenhaus <5.500m
Kinder & Schulen
Schule <1.500m
Kindergarten <1.000m
Höhere Schule <4.000m
Nahversorgung
Supermarkt <1.000m
Bäckerei <1.500m
Einkaufszentrum <2.000m
Sonstige
Bank <1.500m
Geldautomat <1.500m
Polizei <500m
Post <1.500m
Verkehr
Bus <500m
Autobahnanschluss <3.500m
Bahnhof <1.000m
Straßenbahn <1.500m
Flughafen <9.000m
Angaben Entfernung Luftlinie / Quelle: OpenStreetMap
Ausstattung:
Fußbodenheizung, 4 Zimmer, 1 Badezimmer, 2 separate WCs.Lage:
Gumpoldskirchen: historischer Weinort zugehörig UnescoWeltkulturerbe in der Thermenregion, zwischen Mödling
und Baden gelegen.
Lage: Ortsrandlage am Thermenradweg, hochrangig
öffentlich angeschlossen - S Bahn Station, Autobahn,
Schulen, Nahversorger, Ortszentrum, Freizeiteinrichtungen
und gastronomische Betriebe innerhalb 10 Minuten
fussläufig erreichbar.
Die Wiener Stadtgrenze ist 11 Kilometer entfernt.
2 Etage.
Preisdetails
Kaufpreis: 700.000,-, Kaufpreis brutto: 700.000,-, Kaufpreis pro m²: 6.250,-.Plan EG

Plan OG

Aussenansichtsplan

Gartenansicht

Seitenansicht Haus 1

Strassenansicht

Bilder für Willhaben neutral_neu3

Doppelhaushälfte in Gumpoldskirchen
Anbieter kontaktieren