Doppelhaushälfte in 3381 Golling an der Erlauf
Haus kaufen Golling an der Erlauf
Kurzbeschreibung: Neubau Erstbezug in Golling an der Erlauf, Nähe Pöchlarn. Der leicht mediterrane Baustil erinnert an Urlaub und eine laue Brise am Mittelmeer. Hier ist alles neu und hochwertig gebaut. Zum erschwinglichen Preis bekommen Sie hier ein neu weiterlesenDoppelhaushälfte Ausstattung:
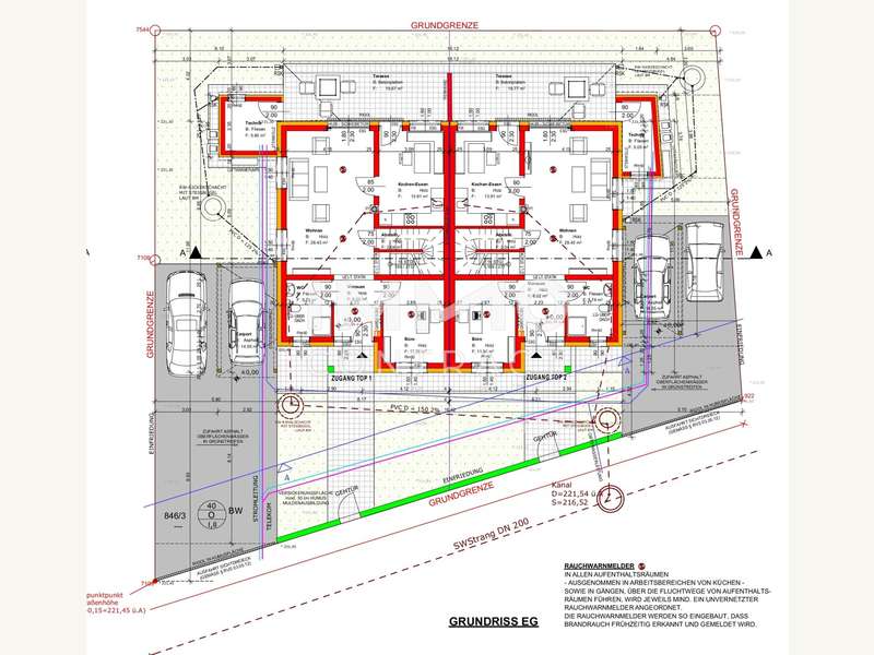
2.00 Stellplätze, nicht unterkellert, 5 Zimmer, 3 Schlafzimmer, 2 Badezimmer, 1 separates WC, 1 Terrassen, Abstellraum, Fliesen.Energieausweis: HWB: 41.00 - fGEE: 0.58 - HWB Klasse: B - fGEE Klasse: A+
Neubau – Erstbezug mit mediterranem Flair
Neubau Erstbezug in Golling an der Erlauf, Nähe Pöchlarn. Der leicht mediterrane Baustil erinnert an Urlaub und eine laue Brise am Mittelmeer.
Hier ist alles neu und hochwertig gebaut. Zum erschwinglichen Preis bekommen Sie hier ein neu gebautes Familienhaus mit drei Schlafzimmern. Die zwei Bäder sind großzügig geplant und modern ausgestattet. Dem geräumigen Wohnzimmer ist eine überdachte Terrasse vorgelagert. Der Garten ist klein und pflegeleicht und sorgt mit wenigen Quadratmetern für das notwendige Grün, das echte Lebensqualität bringt.
Erbaut wurde das Doppelhaus im Jahr 2024. Jede Seite verfügt über zwei KFZ Stellplätze.
Heizung: Luft-Wasser-Wärmetauscher über Fußbodenheizung.
Die Haustechnik ist einem von der Terrasse zugänglichen Technikraum untergebracht.
Schicken Sie uns Ihre unverbindliche Anfrage. Wir senden Ihnen gerne das Exposé mit näheren Informationen wie Baubeschreibung, Flächenwidmung u.a. zu.
Sie brauchen eine Finanzierung? Gerne. Bei uns sind Sie richtig. Mit unserem Partnerinstitut, der Volksbank finden wir eine maßgeschneiderte Lösung für Sie.
Ausstattung:
2.00 Stellplätze, nicht unterkellert, 5 Zimmer, 3 Schlafzimmer, 2 Badezimmer, 1 separates WC, 1 Terrassen, Abstellraum, Fliesen.Lage:
Diese Doppelhaushälfte liegt in der idyllischen Gemeinde Golling an der Erlauf, umgeben von der schönen Landschaft Niederösterreichs. Der Ort bietet eine ruhige Wohnatmosphäre und eignet sich ideal für Familien und Naturliebhaber. Wander- und Radwege, Kultur- und Vereinsangebote sorgen für Abwechslung, während Einkaufsmöglichkeiten, Schulen und medizinische Versorgung schnell erreichbar sind. So verbindet die Lage Natur und Alltag auf ideale Weise.Region: Golling. 2 Etage.
Preisdetails
Kaufpreis: 387.000,-, Kaufpreis pro m²: 2.653,05. Provision: 3% zzgl. 20% USt.Ansicht Süd

Ansicht West

Bad

Bad-Dusche

Bilder für Willhaben neutral_neu3

Eingangsbereich

Gallerie

Gartenbereich

Küche

seitlich

Terrasse

Vorgarten

Wohnzimmer 1

Wohnzimmer 2

Wohnzimmer 3

Wohnzimmer 4

Zimmer OG

Plan OG

Plan EG

Plan Lageplan

Bilder für Willhaben neutral_neu2

https://www.immocontract.at/immobilie/?id=382119

Doppelhaushälfte in Golling an der Erlauf
Anbieter kontaktieren