Geschäftslokal in 9020 Klagenfurt
Gewerbeimmobilie mieten Klagenfurt
Kurzbeschreibung: *** Neubau *** Geschäftsflächen in zentrumsnaher Lage von Klagenfurt Diese – in einem Neubauprojekt – entstandenen Geschäftsflächen heben sich sowohl durch die gute Erreichbarkeit als auch die frequentierte Lage in unmittelbarer weiterlesenGeschäftslokal Ausstattung:
barrierefrei, Zentralheizung, Fernwärme.Energieausweis: HWB: 40.68 - fGEE: 0.6 - HWB Klasse: B - fGEE Klasse: A+
*** Neubau *** Attraktive Geschäftsflächen vis á vis vom Bezirksgericht in Klagenfurt
*** Neubau *** Geschäftsflächen in zentrumsnaher Lage von Klagenfurt
Diese – in einem Neubauprojekt – entstandenen Geschäftsflächen heben sich sowohl durch die gute Erreichbarkeit als auch die frequentierte Lage in unmittelbarer Innenstädtnähe hervor. Ausreichend Schaufensterflächen hin zum begrünten Vorplatz können optimal für Werbemaßnahmen und Präsentationen genutzt werden. Die bauliche Ausführung im Erdgeschoss in Form von Arkaden lies eine kleine Geschäftsmeile“ entstehen, die durch einen Supermarkt sowie einen Gastronomiebetrieb zusätzliche Frequenz erhält.
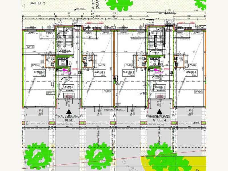
Es stehen Geschäftseinheiten mit Nutzflächen zwischen 73 und 117 m² zur Verfügung, die als offener Raum ausgeführt sind und somit optimal Voraussetzungen für die individuelle Nutzung gewähren.
Ausgestattet werden die Gewerbeflächen „belagsfertig“, d.h. Sie haben die Möglichkeit die Räumlichkeiten selbst zu gestalten.
Die lästige Parkplatzsuche entfällt, da Kunden die Möglichkeit zum bequemen Besuch unmittelbar vor den Geschäftsflächen haben.
Flächen:
10 Geschäfts- Gewerbeeinheiten zwischen rd. 73 m² und rd. 117 m² Nfl.
PKW-Freistellplätze + PKW-Stellplätze in der Tiefgarage
Geschäft 2: 80,59 m² Nfl.
Geschäft 3: 77,06 m² Nfl.
Geschäft 4: 80,22 m² Nfl.
Geschäft 5: 77,06 m² Nfl.
Geschäft 6: 80,22 m² Nfl. -> Vermietet
Geschäft 7: 77,06 m² Nfl. -> Vermietet
Geschäft 8: 73,29 m² Nfl. -> Vermietet
Geschäft 9:112,70 m² Nfl. -> Vermietet
Ausstattung:
- Sanitärbereiche und Anschlüsse für eine Teeküche
- ZH-Fernwärme // WW über ZH
- Elektro-Grundinstallation
Bezug: ab sofort
Mietkonditionen:
Miete: EUR 11,95 / m² (netto)
BK´s: EUR 1,95 / m² (netto) zzgl. Heizung, Wasser, Strom
Ges.: EUR 13,90 / m² (netto)
PKW-Stellplatz: EUR 50,- (netto) pro Monat
Kaution: 3 Bruttomonatsmieten
Vermittlungshonorar: 3 Bruttomonatsmieten zzgl. 20 % Mwst.
Allgemeiner Hinweis:
Aufgrund der Nachweispflicht gegenüber dem Eigentümer sowie in Entsprechung des FAGG (Fern- und Auswärtsgeschäfte-Gesetz) wird um Verständnis ersucht, dass nur Anfragen mit zumindest vollständigem Namen, E-Mailadresse und Telefonnummer bearbeitet werden. Ohne diese Angaben werden keine weiteren Auskünfte erteilt / keine Objektunterlagen übergeben.
Die angegebenen Daten stammen vom Eigentümer und/oder Dritten und wurden mit Sorgfalt erhoben. Für die Richtigkeit und Vollständigkeit kann jedoch keine Haftung übernommen werden. Zahlenangaben können gegebenenfalls gerundet oder geschätzt sein. Das Anbot ist freibleibend und unverbindlich. Irrtümer und Änderungen sind vorbehalten. Nachdruck/ Vervielfältigung nur mit Genehmigung der Firma Realitäten Perkonig Immobilientreuhand KG.
Ausstattung:
barrierefrei, Zentralheizung, Fernwärme.Lage:
ideale verkehrsgünstige, zentrumsnahe Lage, vis á vis vom Bezirksgericht und dem SchubertparkRegion: Innenstadt, Stadttheater, vis á vis vom Bezirksgericht.
Aufteilung:
offener Geschäftstraum, Sanitärbereiche
Preisdetails
Mietpreis pro m²: 11,95. Provision: Provisionspflichtig, Vermittlungsprovision: 2 - 3 BMM (abhängig von der Mietvertragsdauer) zzgl. 20 % Mwst.Geschäftslokal in Klagenfurt - Bild 2

Geschäftslokal in Klagenfurt - Bild 3

Geschäftslokal in Klagenfurt - Bild 4

Geschäftslokal in Klagenfurt - Bild 5

Geschäftslokal in Klagenfurt - Bild 6

Geschäftslokal in Klagenfurt - Bild 7

Geschäftslokal in Klagenfurt
Anbieter kontaktieren